Aprašymas
- Židinio kapsulė kampiniu dešinės pusės stiklu Defro Home Intra LA BP G pakeliamomis durelėmis.
- Juodos tunelinės grotelės 980 x 540 x 90 mm (3 vnt.)
- Juodas metalinis apdailinis rėmelis aplink pakurą
| Gamintojas | DEFRO HOME (Lenkija) |
| Modelis | INTRA LA BP G su balta keramika pakuroje |
| Durelių mechanizmas | pakeliama |
| 16 kW | |
| 6,4 – 19,2 kW | |
| Energinio efektyvumo klasė | A |
| Efektyvumas | 81,2 % |
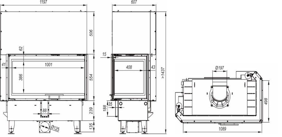
| Dūmtraukio skersmuo | 200 mm |
| Dūmų temperatūra | 264 °C |
| Maksimalus malkų ilgis | 400 mm |
| Lauko oro tiekimas degimui | + |
| Oro tiekimo jungties skersmuo | 125 mm |
| Garantija | 5 metai |
| Svoris | ~336 kg |
Grotelės:
| Gamintojas | DEFRO HOME (Lenkija) |
| Išorės matmenys (ilgis x plotis x aukštis x gylis) | 980 x 540 x 90 x 120 mm |
| Angos matmenys (ilgis x plotis x aukštis) | 970 x 530 x 60 mm |
| Medžiaga | plienas |
| Spalva | juoda |
| 737 cm2 | |
| Garantija | 2 metai |
Rėmelis:
| Gamintojas | DEFRO HOME (Lenkija) |
| Išorės matmenys (ilgis x plotis x aukštis) | 1180 x 590 x 610 mm |
| Medžiaga | plienas |
| Spalva | juoda |
| Garantija | 2 metai |



















Atsiliepimai
Atsiliepimų dar nėra.