Aprašymas
| Gamintojas | ROMOTOP (Čekija) |
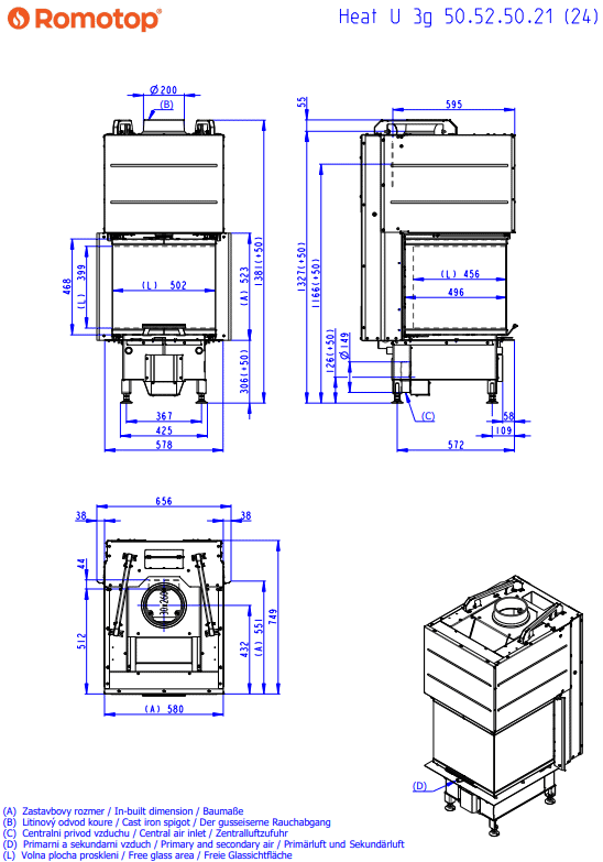
| Modelis | Heat U 3G L 50.52.50.24 / HU3LG 24 |
| Durelių mechanizmas | pakeliama |
| 8 kW | |
| 4,0 – 10,4 kW | |
| Energinio efektyvumo klasė | A+ |
| Efektyvumas | 83,3 % |
| Dūmtraukio skersmuo | 200 mm |
| Dūmų temperatūra | 253 °C |
| Maksimalus malkų ilgis | 350 mm |
| Lauko oro tiekimas degimui | + |
| Oro tiekimo jungties skersmuo | 150 mm |
| Garantija | 5 metai |
| Svoris | ~234 kg |






Atsiliepimai
Atsiliepimų dar nėra.